
E’ una consulenza mirata se hai appena acquistato casa, o sei in procinto di farlo, e vuoi capire se l’immobile è adatto a te e alle tue esigenze. Oppure vuoi fare qualche piccolo o grande intervento e vuoi capire quali potrebbero essere le potenzialità di una trasformazione.
Faremo un’analisi degli spazi in base alle tue richieste per capire se i lavori previsti possano essere effettivamente utili a migliorare il benessere abitativo oppure se abbiano un senso.
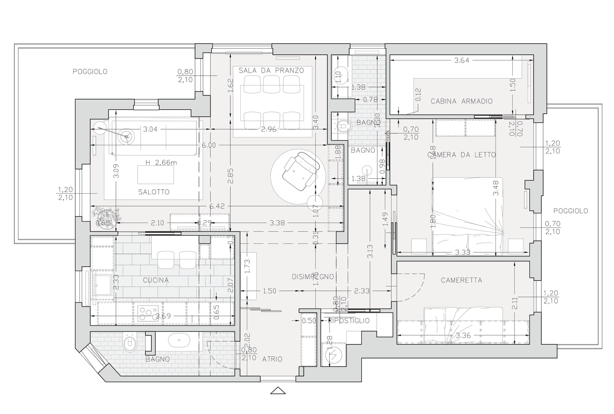
Ti aiuterò a capire quali sono i reali cambiamenti da effettuare ed i punti da migliorare per farti stare bene in quella che sarà la tua nuova casa. Durante l'incontro mi fornirai la planimetria catastale dell'immobile sulla quale poi lavoreremo assieme.
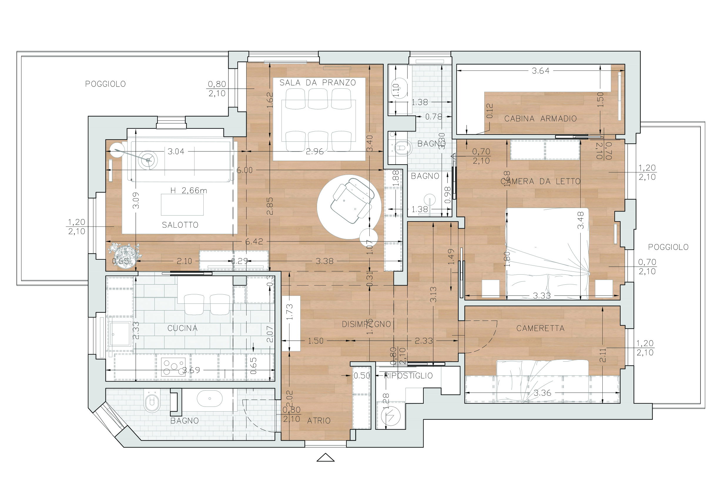
Mi racconterai le tue necessità, i desideri e tutto quello che vorresti ritrovare nella nuova casa: studierò con te una nuova organizzazione interna, funzionale ma soprattutto più in linea con i tuoi bisogni.Alla fine della consulenza ti verrà rilasciata la planimetria modificata digitalizzata neigiorni successivi.

La consulenza può essere svolta anche con una videochiamata programmata. Basterà inviarmi precedentemente la planimetria via mail in modo da poterla modificare insieme durante la call. Alla fine della consulenza ti verrà rilasciata la planimetria modificata digitalizzata nei giorni successivi.
L’investimento per questa consulenza è più piccolo rispetto ad una consulenza completa ma ti fornirà tutti gli elementi necessari per poter già visualizzare quella che potrà essere la planimetria funzionale della tua nuova casa e avere le idee più chiare su cosa fare e come procedere.
Dopo il nostro incontro, nel caso tu abbia bisogno di un maggiore supporto per un progetto più dettagliato o di essere seguito per una ristrutturazione, potremo valutare insieme il servizio più adatto a te.
DURATA DELL'INCONTRO: '90
PREZZO: 450€